複合 リフォーム 事例
|
|
|
|
|
工事箇所 |
: |
LDK・浴室・洗面所・トイレ・洋室・玄関・廊下・サッシ・収納・間取り変更 |
|
|
家屋形態 |
: |
木造2階建て |
|
築年数 |
: |
30年 |
|
工期 |
: |
60日 |
|
|
お住まい |
: |
埼玉県深谷市 |
|
お客様名 |
: |
Sさま |
|
完工年月 |
: |
2024/12 |
|
|
家族構成 |
: |
ご夫妻(60代)・お子さま(30代) |
|
|
|
|
|
|
ご夫婦揃って定年を迎えられるSさま。今まであまりお住まいに手をかけてこなかった、と定年を機に将来を見据え、お住いの全体的なリフォームをお考えになられたそうです。
今回のリフォームのポイントとなったのは「使われていない和室」です。
リビングの横に4.5帖の和室がありますが、ご家族の物置きとなっており、和室としての機能を果たしていません。また和室には押入もありますが、押入の中の物もしまったきりになっているようで、上手く活用できていないそうです。
何度もSさまと打合せを重ね、機能的な収納と生活動線を見直したプランが完成しました。 |
L D K =約340万円=
システムキッチン:LIXILノクトT型3000 メーカー価格:2,370,786円(税込)
(ハンドシャワー水栓・食器洗い乾燥機・3口コンロガラストップ・SERシロッコファン・キッチンパネル)
内窓の設置:LIXIL LOW−Eペアガラス(W1608×H2200,W1608×H840,W2580×H2200) メーカー価格計:707,773円(税込)
フローリング:パナソニック ベリティスフロアーわんにゃんSmile メーカー価格:47,300円/束(税込)
建具:パナソニック ベリティス(4セット) メーカー価格計:360,690円(税込)
壁・天井:ビニールクロス #1000
インテリアカウンター:パナソニック 耐水集成タイプ A型 メーカー価格:105,380円(税込)
高気密床下点検口:城東テクノ SPF-R6060F-12-IV メーカー価格:32,890円(税込)
|
|
【キッチン→リビング】
TVカウンター下部に愛犬用スペースも設け、お互いの様子を身近に感じられるようにしました |
|
|
【リビング→キッチン】
間仕切り壁をなくしLDKへ。リビングとキッチンの位置を入替えたことで、水まわりの動線がスムーズに! |
浴室 =約89万円=
システムバス:LIXIL リデア 1216サイズ メーカー価格:1,540,374円(税込)
(キレイサーモフロア・ミナモ浴槽・サーモバスS・天井換気扇・片引き戸・パネルダウンライト(昼光色LED・3灯)・薄型保温2枚組フタ)
ガス給湯器(エコジョーズ):リンナイ 20号壁掛オート RUF-K206SAW + MBC-240V(A) メーカー価格:433,600円(税込)
|
|
| お住まい内部の色合いと合わせスッキリと。スペース有効活用でドアから引き戸に変更! |
洗面所 =約38万円=
洗面化粧台:LIXIL クレヴィ メーカー価格:470,800円(税込)
(幅750mm奥行500mm+アッパーキャビネット・引出しタイプ・タッチレス水栓(ナビッシュ)・三面鏡(全収納)・LED照明・くもり止めコート(中央鏡)・プラグコード・スマートポケット)
洗濯機用水栓金具:LIXIL LF-HN50KQ メーカー価格:10,560円(税込)
建具:パナソニック ベリティス(2セット) メーカー価格計:170,720円(税込)
床::クッションフロア
壁・天井:ビニールクロス #1000
|
|
| 洗面化粧台と洗濯機置き場をわけ独立した空間に。洗面台上部に収納を設置しました |
トイレ =約26万円=
トイレ:LIXIL アメージュリトイレ+NewPASSO(EA21Aグレード) メーカー価格:322,300円(税込)
(ECO5・手洗い付・フルオート便器洗浄QV・棚手摺り(L型・紙巻器付)・タオルリング)
建具:パナソニック ベリティス メーカー価格:78,210円(税込)
床:クッションフロア
壁・天井:ビニールクロス #1000
収納(和室→ウォークスルー収納) =約94万円=
建具:パナソニック ベリティス(4セット) メーカー価格計:403,837円(税込)
フローリング:パナソニック ベリティスフロアーわんにゃんSmile メーカー価格:47,300円/束(税込)
壁・天井:ビニールクロス #1000
|
|
| ウォークスルー収納は上部に既存の欄間窓を残したことで、少しながらも自然光が期待できます |
洋室(2階・3部屋) =約280万円=
内窓の設置:LIXIL LOW−Eペアガラス(W1673×H1761,W1608×H1144,W1608×H992) メーカー価格計:379,500円(税込)
建具:パナソニック ベリティス(12セット) メーカー価格計:812,790円(税込)
フローリング:パナソニック ベリティスフロアーベースコート メーカー価格:47,300円/束(税込)
壁・天井:ビニールクロス #1000
|
|
| 隣り合わせの部屋との収納の分け方を変え、埋込みのTV置き場と飾り収納に! |
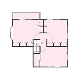
間取り図
 |
 |
・・・改装部分 |
問題となった和室はウォークスルーの収納に。
既存の欄間を明かり取り窓として残し、通路の両サイド全面に収納を設けました。ウォークスルーにしたことでキッチンと洗面所を繋ぐ直通の廊下もでき、生活動線がスムーズに。
メインの廊下とは別動線となるため、来客者に生活感を感じさせない配慮も。
そして収納は「物をしまう」だけではなく、所々には見せる収納も設け、インテリアとしても活用できるようにしました。
お客様の声
撮影時はまだあまり収納されていませんでしたが、「どこに何を置こうか、考えたり買い物をするのが楽しいです!」と笑顔でお話しくださいました。
工事費
|
|
|
|
|
|
LDKリフォーム |
・・・・・ |
3,405,000円 |
|
|
浴室リフォーム |
・・・・・ |
891,000円 |
|
|
洗面所リフォーム |
・・・・・ |
378,000円 |
|
|
トイレリフォーム |
・・・・・ |
258,000円 |
|
|
和室→ウォールスルー収納リフォーム |
・・・・・ |
944,000円 |
|
|
2階(洋室3部屋)リフォーム |
・・・・・ |
2,799,000円 |
|
|
玄関・廊下リフォーム |
・・・・・ |
318,000円 |
|
|
解体処分費 |
・・・・・ |
816,000円 |
|
|
養生設置・クリーニング |
・・・・・ |
163,000円 |
|
|
現場管理経費 |
・・・・・ |
798,000円 |
|
|
|
|
|
|
|
|
|
|
|
|
1・2階全面 リフォーム の費用 |
・・・・・ |
10,770,000円 |
|
|
|
|
|
|
※上記金額は消費税を含みます。 |
|